Comparador de Planos de Mimosas | Real de La Quinta
Por favor, gire su dispositivo para ver el contenido.
{{sectionTitle[lang]}}
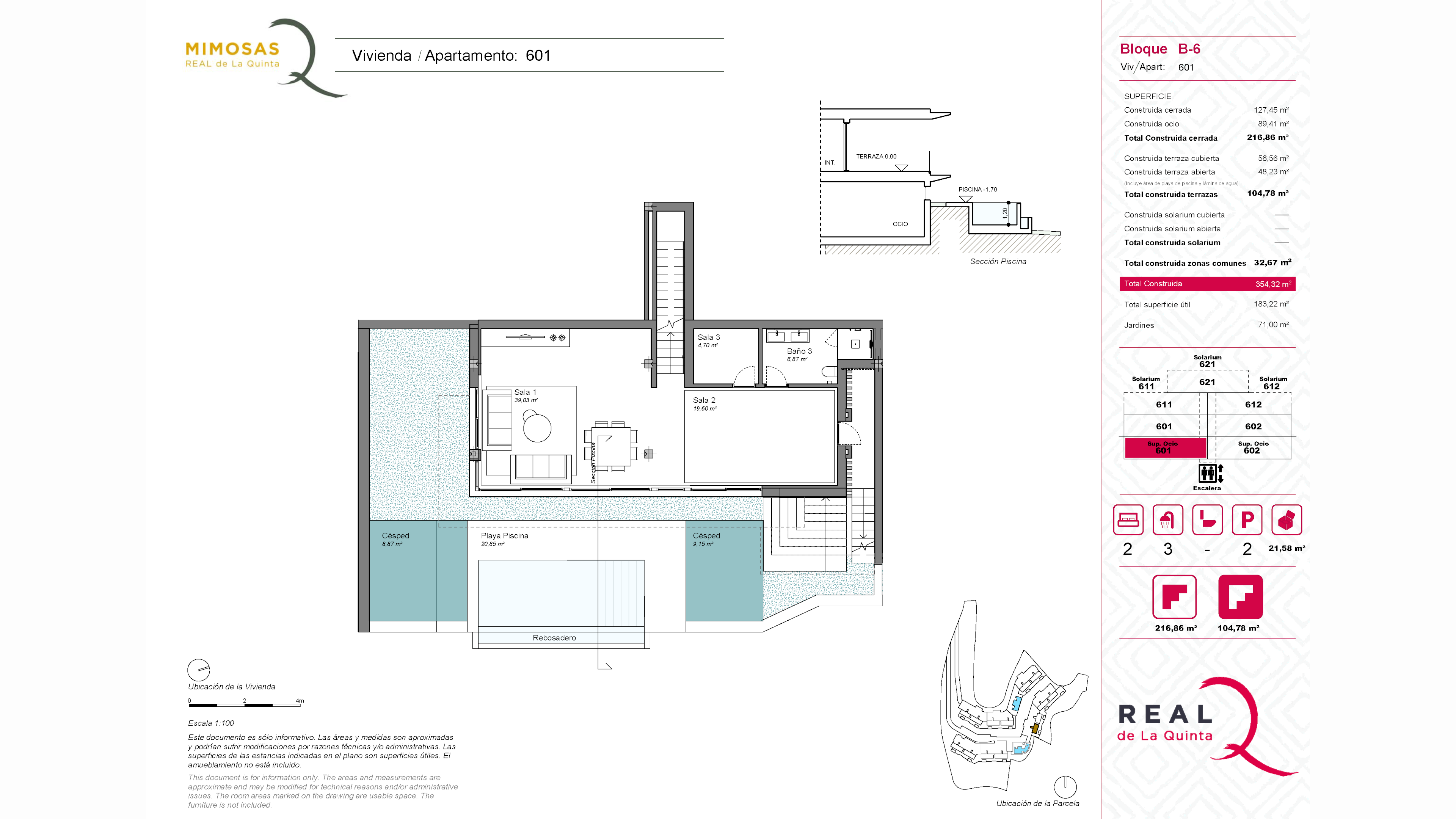
BLOQUE 6 Planta Apartamento Villa Garden APARTAMENTO 601
El mobiliario indica una posible distribución y no está incluido en la venta. La información facilitada con este contenido es orientativa y de carácter general estando sujeta a posibles cambios